欢迎访问上海申继交通有限公司官网!

关注我们:
贵宾服务热线

工程案例
Project case
当前位置:首页 - 工程案例 - 工程案例

沪亭南路庙泾桥箱涵维修工程

发布时间:2025-01-23

一、背景

沪亭南路庙泾桥,作为一座关键的箱涵结构桥梁,在近期检查过程中,发现该桥梁的箱梁顶板遭受了严重的破损,特别是庙泾桥2#箱涵顶板区域,破损情况尤为突出。鉴于此,建设单位迅速响应,要求对该区域进行专项维修加固作业,以确保桥梁的结构安全与通行顺畅。

箱涵作为一类具有特殊构造特征的桥梁结构,其维修工作面临多重挑战:

1. 拆除难度大

箱涵内部空间狭小,且结构复杂,增加了拆除工作的难度。

2. 侧边挤压问题

在拆除箱涵时,侧边结构容易因失去支撑而向中间挤压,需采取有效措施防止这种情况发生。

3. 季节性潮汐影响

受上海地区季节性潮汐影响,河水湍急,给施工带来了额外的难度和风险。

二、时间紧任务重

为确保沪亭南路庙泾桥尽快恢复通行,上级部门将施工日期严格限定在2024年5月1日至5月5日期间。面对如此紧迫的时间要求,我们决定采用先进的C50快硬混凝土进行施工,以确保按时完成任务。

三、施工过程

为确保维修工程顺利进行,我们精心策划并实施了以下步骤:

1. 构建工厂化预制

为提高施工效率,钢筋采取场外预制、现场拼装的工艺。这一举措显著缩短了施工周期,为按时完成任务奠定了坚实基础。

2. 绳锯分段切割

为避免机械凿除时混凝土碎块落入河道,施工团队决定采用绳锯切割的方式分3阶段进行拆除,通过精确控制切割路径和方式,成功实现了分块拆除,有效保护了周边环境。

拆除示意图:

 

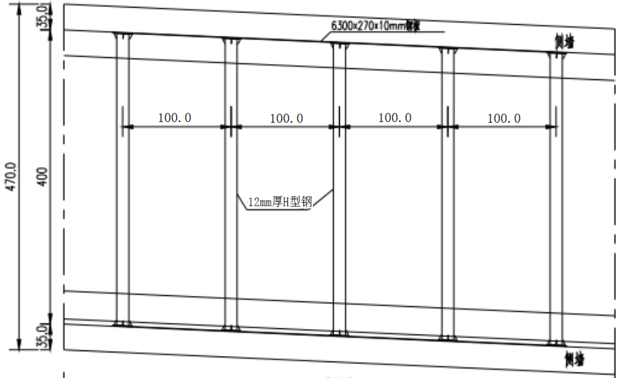
3. 支撑

为防止箱梁顶板拆除后侧墙因土压力失稳,特在箱梁内部架设4根H型钢横支撑,H型钢两端与侧墙接触部位采用双排化学螺栓进行牢固固定。

横支撑示意图:

 

4. 立模钢筋安装

拆除完成后,在箱涵内部搭建水下满堂钢管脚手架,随后进行模板安装。依据钢筋图纸布置箱涵上顶板钢筋,将侧墙预留钢筋与新安装钢筋焊接牢固,使整体性受力。

5. 24HC50快硬混凝土施工

为确保能在5月5日期间按时完成任务,采用了先进的24HC50快硬混凝土进行施工。

6. 拆模、摊铺沥青

待混凝土摊铺后24H,进行拆模作业,并对桥面进行了沥青摊铺处理,恢复了桥梁的通行功能。

7. 按时完成任务

在各部门的紧密协作下,工程于2024年5月5日下午3点顺利竣工,并恢复交通。

 

 

 

 

 


网站版权所有:上海申继交通科技有限公司  地址:上海市奉贤区奉金路685号  电话:13162982788  传真:021-67150905
备案号:沪IPC备15004419号-1